亞洲建築專業網

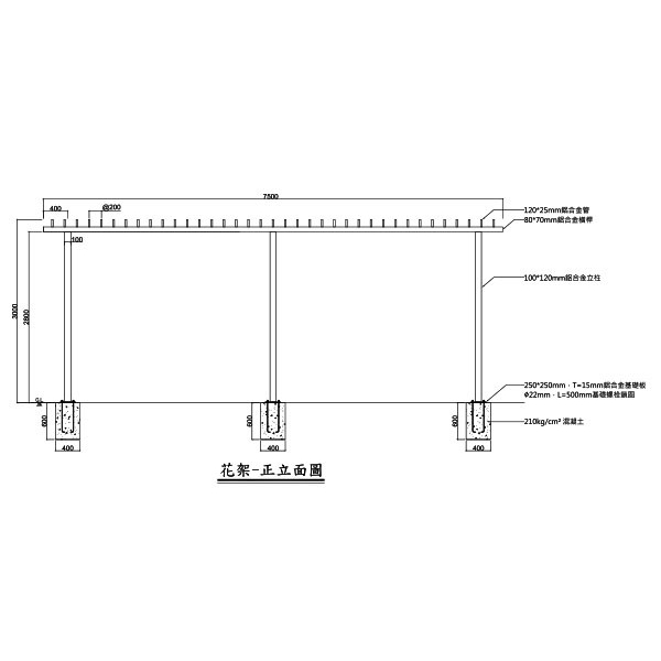
涼亭及棚架-大埤南和社區排水及環境綠美化改善工程

涼亭及棚架-大埤南和社區排水及環境綠美化改善工程

涼亭及棚架-大埤南和社區排水及環境綠美化改善工程

工程施作

  



涼亭及棚架-大埤南和社區排水及環境綠美化改善工程

涼亭及棚架-大埤南和社區排水及環境綠美化改善工程

涼亭及棚架-大埤南和社區排水及環境綠美化改善工程
留言預約 收藏實績

典雅雕塑工程有限公司

本公司創立於1978年,至今已四十餘年,工廠設立於台中工業區,廠內雇用經驗豐富技工進行前置作業;如焊接、美化修飾或局部組裝等作業,並設有烤漆廠;提供品質優良耐久使用的氟碳烤漆,北部設有台北分公司,承接案件不分縣市、地區,至今作品遍佈台灣各地,創立以來至力投入於公共工程景觀雕塑工作,累積相當經驗,可提供客戶多樣化需求,以客戶滿意度為目標持續努力。
帶領城市邁向未來景觀一直是我們的願景,在台灣我們已有無數個作品座落於各城市鄉鎮,為都市面容帶來多樣化的風采,更藉此帶動觀光人潮,促進當地觀光景點發展。

目前本公司主要業務包括:
1.建築浮雕、線板工程承包
2.景觀雕塑工程承包
3.展覽館、商業空間雕塑工程承包
4.抽象造型、西洋雕像、各類造型物承製
5.電動模型製作
6.寺廟雕塑工程承包
7.涼亭、花架、平台、棧道工程承包

綠建築環保建材現代造型系列
綠建築環保建材鋁合金仿竹系列
綠建築環保建材鋁合金仿木系列
綠建築環保建材碳化竹木資材系列
雕塑品系列
共融式遊具系列

1. 公共工程景觀金屬造型工程承攬。
2. 公共工程金屬入口意象、棚架、涼亭、花架、候車亭、導覽牌、指示牌、解說牌、車阻…等相關工程設計製作承攬。
3. 自由曲面(非幾何圖型)金屬造型物設計、製作承攬。
4. 公共藝術、金屬鑄造、F.R.P…等造型物設計製作承攬。
5. 鋁合金仿竹涼亭、棚架、候車亭、導覽牌、指示牌、解說牌、車阻…等相關工程設計、製作承攬。

服務項目

棚架工程、涼亭工程、花架工程、候車亭工程、導覽牌工程、指示牌工程、解說牌工程、車阻工程、自由曲面金屬造型物設計製作承攬、非幾何圖型金屬造型物設計製作承攬、金屬造型物設計製作承攬、公共藝術造型物設計製作承攬、金屬鑄造造型物設計製作承攬、FRP造型物設計製作承攬、鋁合金仿竹涼亭工程、綠建築環保建材現代造型、綠建築環保建材鋁合金仿竹、綠建築環保建材鋁合金仿木、綠建築環保建材碳化竹木資材、雕塑品、共融式遊具、公共工程景觀金屬造型工程承攬、公共工程金屬入口意象工程

公司資訊

典雅雕塑工程有限公司

  • 台中市

  • 04-23503355

  • 棚架工程涼亭工程花架工程候車亭工程,導覽牌工程,指示牌工程,解說牌工程,車...

  • 留言預約