亞洲建築專業網
  • TGM型 熱浸鍍鋅正方型集水井蓋板-全盛鋼鐵製品廠有限公司TGM型 熱浸鍍鋅正方型集水井蓋板-全盛鋼鐵製品廠有限公司
  • TGM型 熱浸鍍鋅正方型集水井蓋板-全盛鋼鐵製品廠有限公司TGM型 熱浸鍍鋅正方型集水井蓋板-全盛鋼鐵製品廠有限公司

TGM型 熱浸鍍鋅正方型集水井蓋板

TGM型 熱浸鍍鋅正方型集水井蓋板

公司 : 全盛鋼鐵製品廠有限公司

電話 : 04-8852219

TGM型 熱浸鍍鋅正方型集水井蓋板產品說明

TGM型 熱浸鍍鋅正方型集水井蓋板
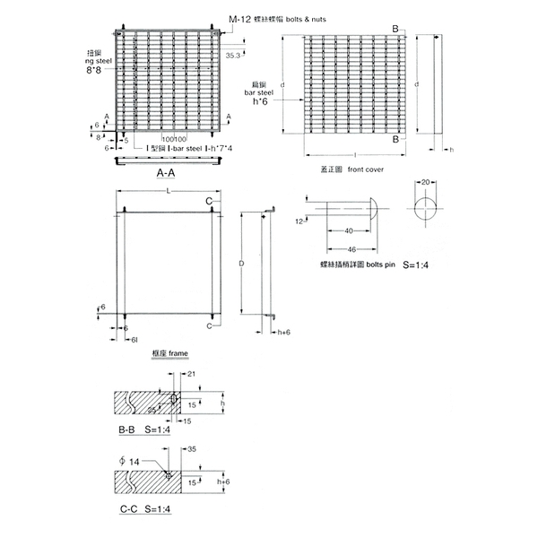
1. W:溝距
2. TGM型格柵板不配合水泥板而單獨使用於連續橫斷溝時,其主桿應跨於兩邊溝牆之上,與水流方向垂直。
3. 本設計圖採用單位:尺寸為公厘,重量為公斤。
4. 混凝土灌澆其鋼筋保護厚度應為2公分。
5. 混凝土強度280kg/cm2以上。
6. 熱浸鍍鋅格柵板製造說明:
a. 熱浸鍍鋅格柵板構成鋼材:
1. 主桿為I型鋼I-h×7×4節距=35.3mm
2. 橫桿為□8×8且每35.3mm扭轉90度節距=100mm
3. 封邊:格柵板兩邊銲以50×6mm之扁鋼為邊框,不得造成母材溶蝕。
b. 熱浸鍍鋅格柵板蓋(封邊除外)須用高週波全自動熔,不得造成母材熔蝕。
c. 材質:全部使用CNS SS-400鋼材。
d. 格柵板製造成型後,均須熱浸鍍鋅做表面處理,鍍鋅量:610g/㎡。

產品用途

適用範圍:巷道排水設備工程、縣市污水下水道系統支(分)管及用戶接管工程

全盛鋼鐵製品廠有限公司

全盛鋼鐵製品廠有限公司始於民國九十四年創立,秉持「精進發展、永續壯大、誠信為本、價格合理、成果共享」的經營方針,「穩健踏實、積極創新」的經營方式。

由於各界人士的愛護支持下,使得全盛鋼鐵不斷拓展業務,擴建廠房、增添設備、勉達到「價格最公道,處理最快速,品質最優良,你我最滿意」的經營境界。並秉持「品質至上、顧客滿意」之品質政策。

幸賴全體同仁努力下,不斷地追求突破,積極發展。工廠直營水溝蓋、鍍鋅格柵蓋、鍍鋅化妝蓋板、鐵件工程、鐵骨橋樑、專業生產鍍鋅格柵蓋板之製造及銷售,至此已建立一完整的生產體系。

努力拓展多角化產品的製造,行銷及服務,並一本求新求變的經營方針,追求企業的成長。歡迎聯絡本公司。


營業經營項目
1. 格柵板設計研發/製造加工/批發銷售業務
2. 各種鐵材買賣、代銷之經營
3. 鋼鐵製造及相關產業技術之技術諮詢問業務


產品服務項目
1. 鍍鋅格柵蓋
2. 鍍鋅格柵框
3. 鍍鋅花紋蓋板
4. 鍍鋅化妝蓋板
5. 止滑鋸齒格柵蓋
6. 陰井蓋
7. 側溝蓋