亞洲建築專業網
  • ASTER PD30 一字型圓棒包角 Patch For Pivot Door-美德亞有限公司ASTER PD30 一字型圓棒包角 Patch For Pivot Door-美德亞有限公司
  • ASTER PD30 一字型圓棒包角 Patch For Pivot Door-美德亞有限公司ASTER PD30 一字型圓棒包角 Patch For Pivot Door-美德亞有限公司

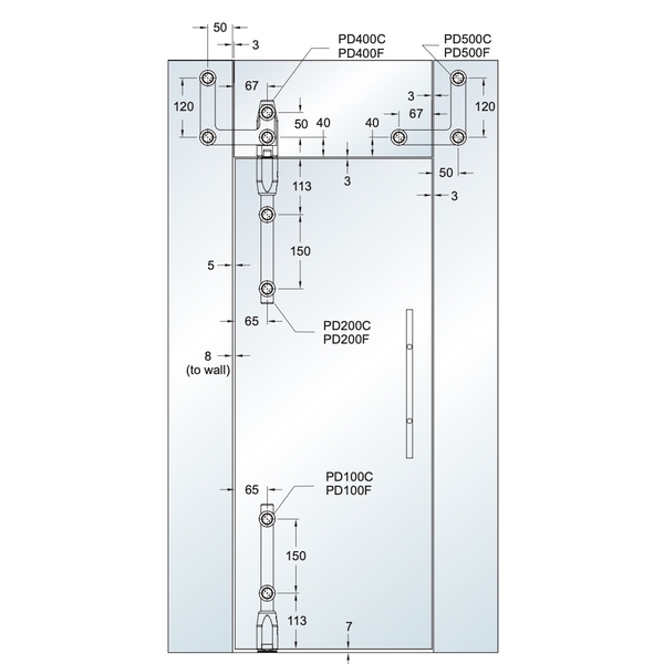
ASTER PD30 一字型圓棒包角 Patch For Pivot Door

型號 : PD30

品牌 : ASTER

產地 : 台灣 TAIWAN 🇹🇼

ASTER PD30 一字型圓棒包角 Patch For Pivot Door

⭕️ 如有任何產品問題及報價,歡迎來電詢問,我們會立即為您服務。

TEL : 02-25157057
FAX : 02-25046288
E-mail:mdy25157057@gmail.com
LINE ID : @maa8865i

公司 : 美德亞有限公司

電話 : 02-25157057

ASTER PD30 一字型圓棒包角 Patch For Pivot Door產品說明

美德亞有限公司

Made in 1996.04.02 成立20多年,已30年以上資歷,德國DORMA多瑪、德國GEZE蓋澤 合格代理商,
進口自動門機、電動門弓器專業供應商,國內外各式門用五金建築設備供應商。

自動門機|旋轉門機|電動門弓器|自動門弓器 | 地鉸鏈|門弓器 | 陽極鎖|電鎖|陰極鎖|通關機|三叉機
|自然排煙窗|電動排煙窗|四合一電子鎖|高級訂製把手|天地栓|概括門類相關五金,產品皆有通過多項認證及防火測試。

歡迎各大建設公司、工程案之五金配件、大樓社區維修、學校、建築師及設計師合作。

Pre-eminent leadership innovative spirit mission-accomplish guarantee - 客戶的需求 我們使命必達

下一筆 : 龐貝石