亞洲建築專業網

D桃園地標意象-水濂帶

D桃園地標意象-水濂帶,典雅雕塑工程有限公司
D桃園地標意象-水濂帶-典雅雕塑工程有限公司
D桃園地標意象-水濂帶-典雅雕塑工程有限公司
D桃園地標意象-水濂帶-典雅雕塑工程有限公司
D桃園地標意象-水濂帶-典雅雕塑工程有限公司

D桃園地標意象-水濂帶

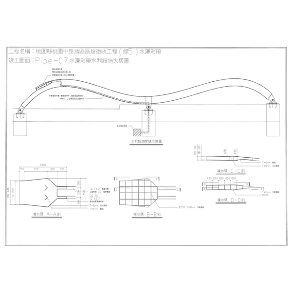
  • 竣工圖